1414 N4 PH Series Enclosures - NEMA 12, 13, 4
Continuous Hinge, Clamped Cover
Application
 
  • Designed for use as instrument enclosures, electric, hydraulic or pneu­­matic control housings, electrical junction boxes or terminal wiring enclosures.
  • Provides protection where equipment may be hosed down or otherwise be very wet, or in outdoor applications for full weather protection.
 
Standards
  • UL 508 Type 3R, 4, 12 and 13
  • CSA Type 3R, 4, 12 and 13
  • Complies with
    • NEMA Type 3R, 4, 12 and 13
    • JIC EGP-1-1967 unless marked¹
    • IEC 60529, IP66
 
Construction
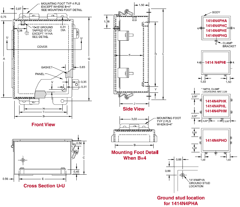
  • Body formed from 16 or 14 gauge steel. Covers are formed from 14 gauge steel.
  • Smooth, continuously welded seams without knockouts, cutouts or holes.
  • Welded brackets provide for enclosure mounting.
  • Continuous hinged cover is secured with stainless steel clamps and screws.
  • Stainless steel continuous hinge on door may be removed by pulling the stainless steel hinge pin.
  • Oil resistant gaskets are permanently secured.
  • All models larger than 4" x 4" include a removable 14 gauge inner panel.
  • Internal threaded weld studs are provided for mounting inner panels.
  • A bonding stud is provided on the door and a grounding stud is provided in the enclosure.
 
Finish
  • Cover and enclosure are phos­phatized, finished in recoatable smooth ANSI 61 gray powder coating.
  • Removable inner panel is finished in white powder coating.
 
Back to Top
 
Part No.With
Panel
Part No.Without
Panel
Panel Size Centers
 
Cover
Dimensions
  Ship Wt. lbs
A B C D E F G H J L T V Y with Panel w/o Panel
1414N4PHA¹
$56.94

4.0 4.0 3 4.75 2.00 2.60 5.50 4.31 4.31 3.00 1
1414N4PHC¹
$68.10

1414N4PHCLP¹
$64.44

6.0 4.0 3 4.88 2.88 2.5 6.75 2.00 2.60 7.50 6.31 4.31 3.00 0.31 0.56 3 2
1414N4PHG
$84.70

1414N4PHGLP
$79.60

8.0 6.0 3.5 6.75 4.88 3 8.75 4.00 3.10 9.50 8.31 6.31 5.00 0.25 0.63 6 5
1414N4PHE
$77.41

1414N4PHELP
$73.00

6.0 6.0 4 4.88 4.88 3.5 6.75 4.00 3.60 7.50 6.31 6.31 5.00 0.31 0.56 5 4
1414N4PHI
$102.98

1414N4PHILP
$96.04

10.0 8.0 4 8.75 6.88 3.5 10.75 6.00 3.60 11.50 10.31 8.31 7.00 0.25 0.63 10 9
1414N4PHI6
$118.47

1414N4PHI6LP
$111.52

10.0 8.0 6 8.75 6.88 5.5 10.75 6.00 5.60 11.50 10.31 8.31 7.00 0.25 0.63 12 11
1414N4PHK
$132.01

1414N4PHKLP
$122.61

12.0 10.0 5 10.75 8.88 4.5 12.75 8.00 4.60 13.50 12.31 10.31 9.00 0.25 0.63 15 14
1414N4PHL6
$140.14

1414N4PHL6LP
$129.08

12.0 12.0 6 10.75 10.88 5.5 12.75 10.00 5.60 13.50 12.31 12.31 11.00 0.25 0.63 25 24
1414N4PHM6
$166.77

1414N4PHM6LP
$154.45

14.0 12.0 6 12.75 10.88 5.5 14.75 10.00 5.60 15.50 14.31 12.31 11.00 0.25 0.63 21 20
1414N4PHO6
$198.18

1414N4PHO6LP
$181.85

16.0 14.0 6 14.75 12.88 5.5 16.75 12.00 5.60 17.50 16.31 14.31 13.00 0.25 0.63 26 24
1414N4PHM8
$178.82

1414N4PHM8LP
$166.50

14.0 12.0 8 12.75 10.88 7.5 14.75 10.00 7.60 15.50 14.31 12.31 11.00 0.25 0.63 22 20
1414N4PHO10
$229.92

1414N4PH010LP
$213.60

16.0 14.0 10 14.75 12.88 9.5 16.75 12.00 9.60 17.50 16.31 14.31 13.00 0.25 0.63 28 26

¹ Does not meet JIC requirements