1414 N4 Series Enclosures - NEMA 12, 13, 4
Clamped, Lift Off Cover
Application
 
  • Designed for use as instrument enclosures, electric, hydraulic or pneumatic control housings, electrical junction boxes or terminal wiring enclosures.
  • Provides protection where equipment may be hosed down or otherwise be very wet, or in outdoor applications for full weather protection.
 
Standards
  • UL 508 Type 3R, 4, 12 and 13
  • CSA Type 3R, 4, 12 and 13
  • Complies with
    • NEMA Type 3R, 4, and 12
    • JIC EGP-1-1967
    • IEC 60529, IP66
 
Construction
  • Body formed from 16 or 14 gauge steel. Covers are formed from 14 gauge steel.
  • Smooth, continuously welded seams without knockouts, cutouts or holes.
  • Welded brackets provide for enclosure mounting.
  • Lift off cover is secured with stainless steel clamps and screws.
  • Oil resistant gaskets are permanently secured.
  • All models larger than 4" x 4" include a removable 14 gauge inner panel.
  • Internal threaded weld studs are provided for mounting inner panels.
  • A grounding stud is provided in the enclosure.
 
Finish
  • Cover and enclosure are phosphatized, finished in recoatable smooth ANSI 61 gray powder coating.
  • Removable inner panel is finished in white powder coating.
 
Back to Top
 
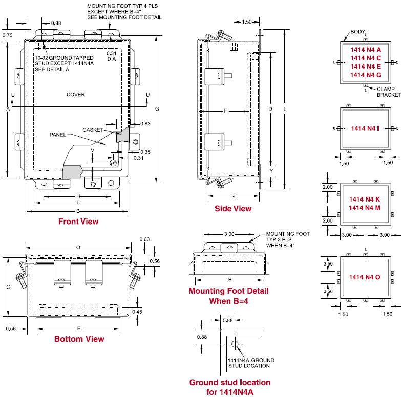
Part No. Panel Dimensions Centers   Cover
Dimensions
  Ship
Wt.
(lbs)
A B C D E F G H J L T V Y
1414N4Aš
$49.41

4.00 4.00 3.00 — — — 4.75 2.00 2.60 5.50 4.31 4.31 3.00 — — 2
1414N4C
$59.85

6.00 4.00 3.00 4.88 2.88 2.50 6.75 2.00 2.60 7.50 6.31 4.31 3.00 0.31 0.56 3
1414N4G
$74.49

8.00 6.00 3.50 6.75 4.88 3.00 8.75 4.00 3.10 9.50 8.31 6.31 5.00 0.25 0.63 6
1414N4E
$69.82

6.00 6.00 4.00 4.88 4.88 3.50 6.75 4.00 3.60 7.50 6.31 6.31 5.00 0.31 0.56 6
1414N4I
$93.27

10.00 8.00 4.00 8.75 6.88 3.50 10.75 6.00 3.60 11.50 10.31 8.31 7.00 0.25 0.63 10
1414N4K
$119.49

12.00 10.00 5.00 10.75 8.88 4.50 12.75 8.00 4.60 13.50 12.31 10.31 9.00 0.25 0.63 15
1414N4M6
$151.59

14.00 12.00 6.00 12.75 10.88 5.50 14.75 10.00 5.60 15.50 14.31 12.31 11.00 0.25 0.63 20
1414N4O6
$179.97

16.00 14.00 6.00 14.75 12.88 5.50 16.75 12.00 5.60 17.50 16.31 14.31 13.00 0.25 0.63 26
1414N4M8
$157.44

14.00 12.00 8.00 12.75 10.88 7.50 14.75 10.00 7.60 15.50 14.31 12.31 11.00 0.25 0.63 22
1414N4O10
$221.61

16.00 14.00 10.00 14.75 12.88 9.50 16.75 12.00 9.60 17.50 16.31 14.31 13.00 0.25 0.63 30

š Panel not included